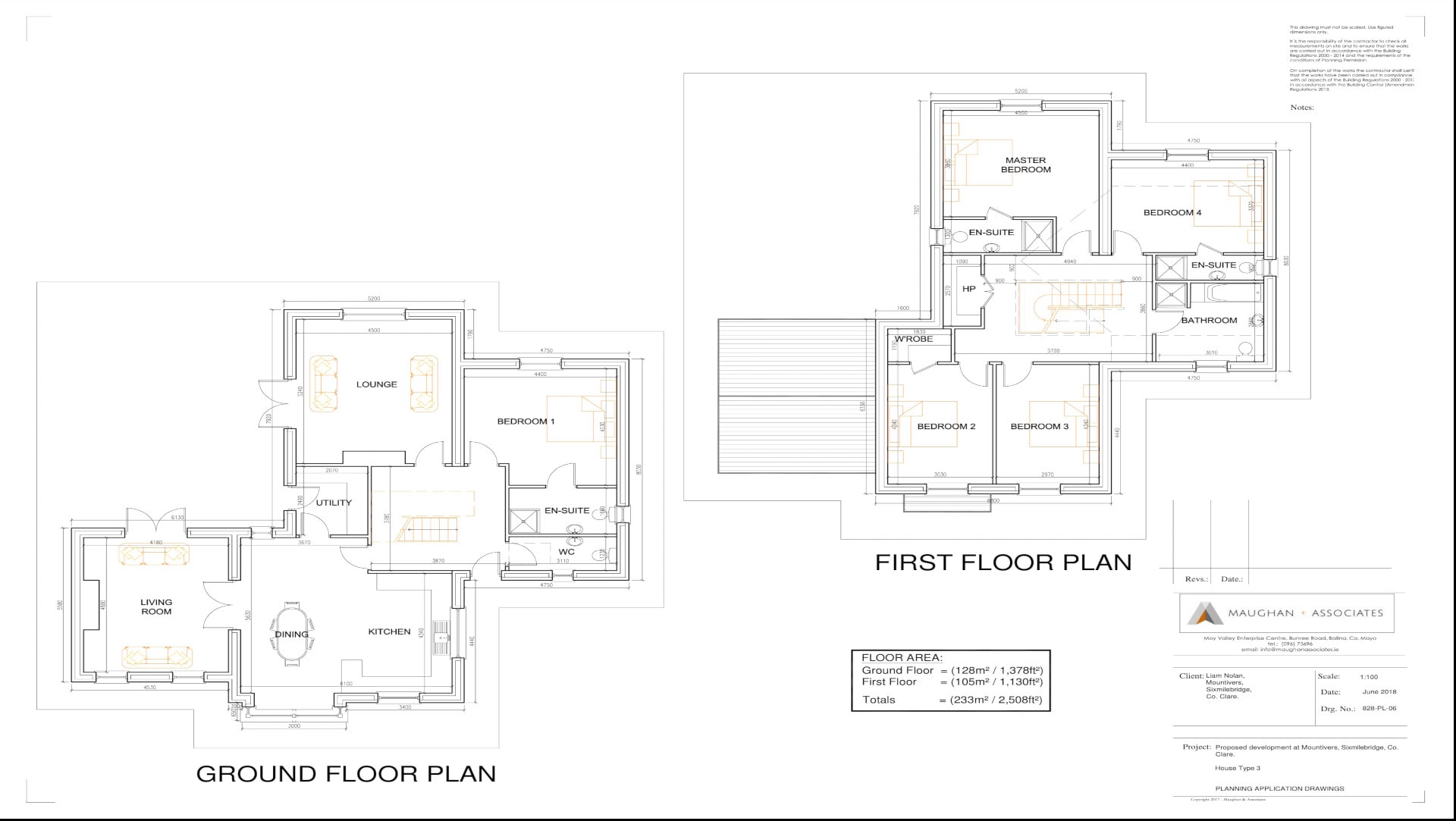
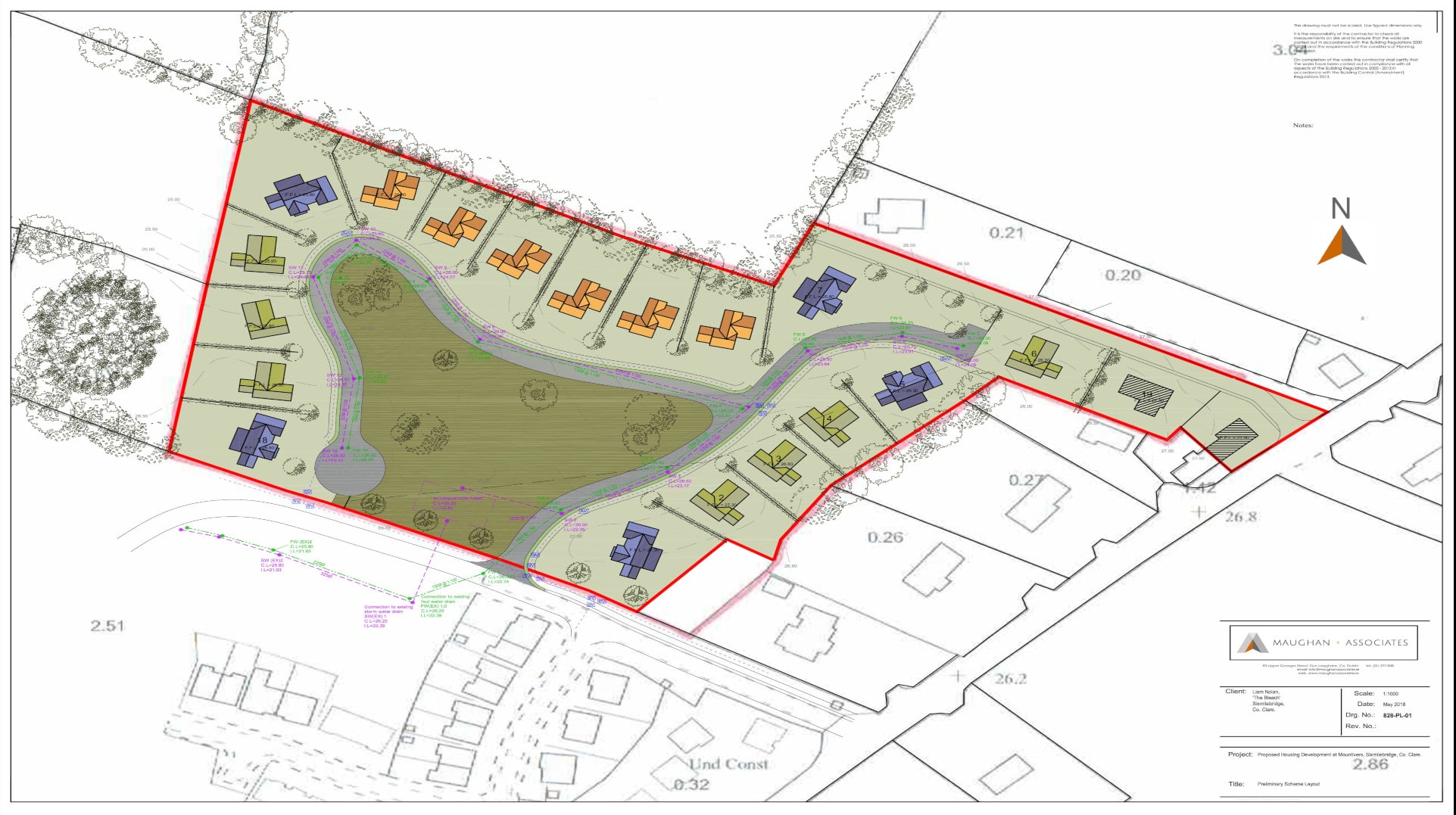
Sixmilebridge, Co.Clare

LPN Construction is happy to announce their upcoming project at Sixmilebridge. This project consisting of 20 newly built homes is due to commence in the latter part of 2019. For more information on this project please Contact Us.


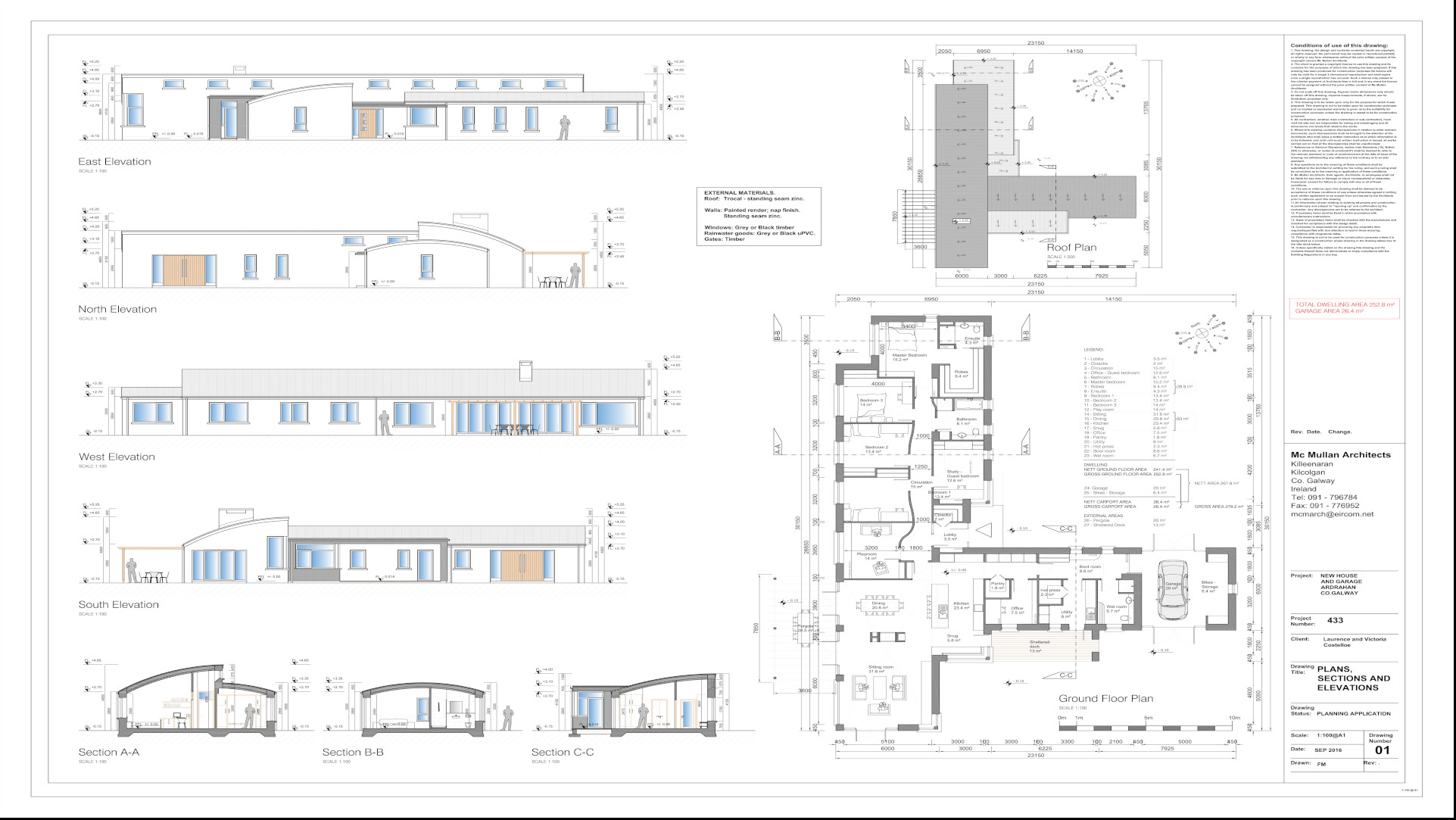
Ardrahan, Co. Galway

This project from LPN Construction is a single family detached home expected to be completed in mid 2019.

Please contact us for more information on custom home builds


Carton House, Maynooth

Liam P Nolan Construction is excited to be working on this new single detached family home located in Maynooth.

For more information on this upcoming project and our custom home renovations and Custom Built Homes please contact us.